827 W Confederate Ave, Columbia, SC 29201
Toggle Navigation
Images
Videos
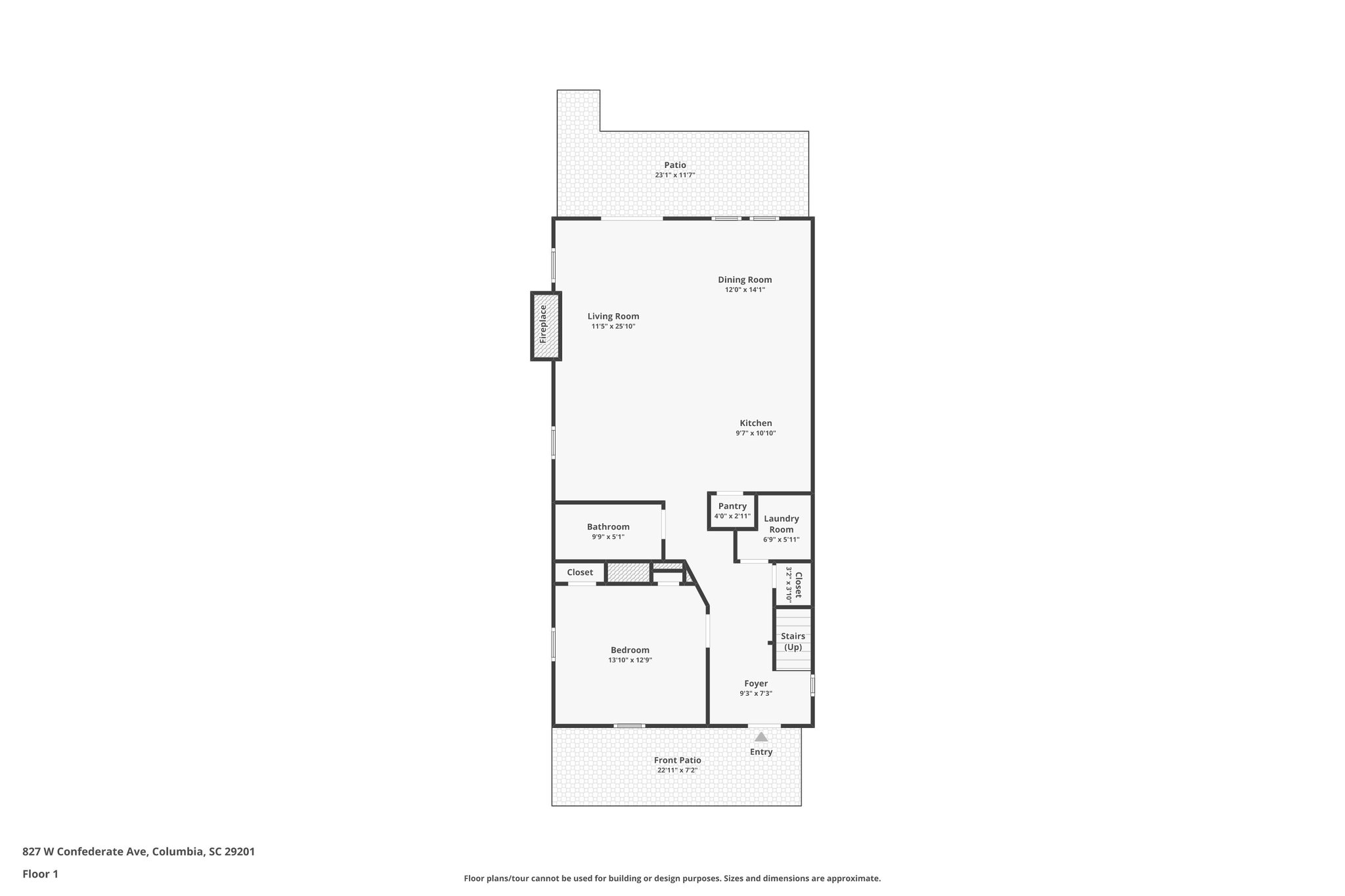
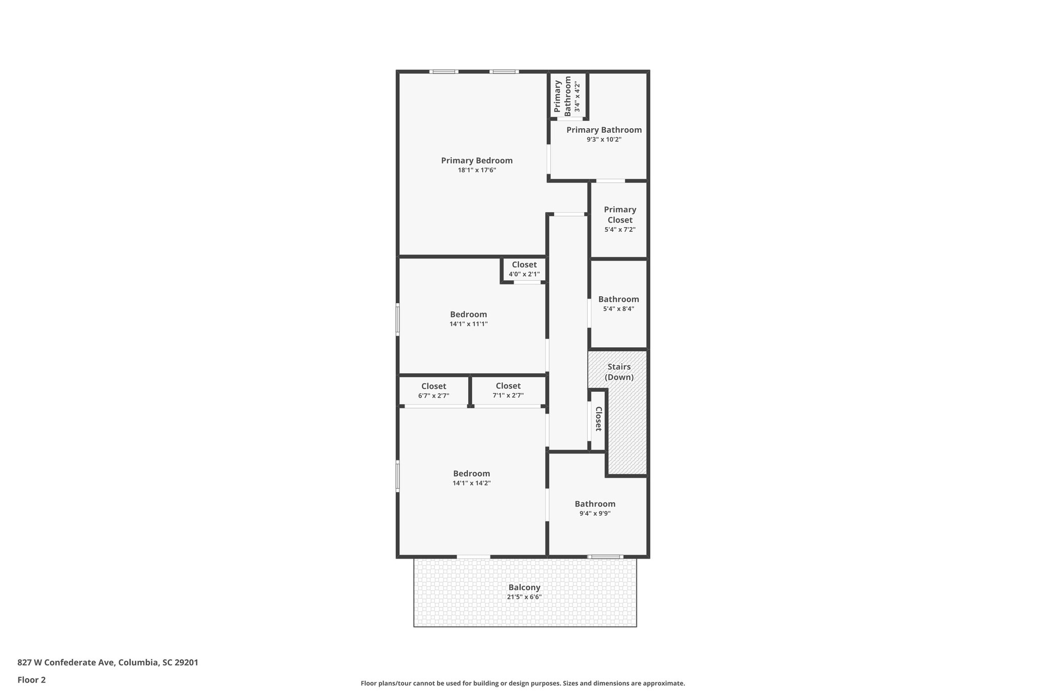
Floor Plans
3D Tour
Map
827 W Confederate Ave
Columbia, SC 29201
Scroll to Content
Images
Slideshow
Photo Grid
Hide
Previous
Next
Show more
Videos
Content Coming Soon
Floor Plans
Slideshow
Photo Grid
Hide
Previous
Next
3D Tour