206 Water Hickory Way, Columbia, SC 29229
Toggle Navigation
Images
Floor Plans
Map
206 Water Hickory Way
Columbia, SC 29229
Scroll to Content
Images
Slideshow
Photo Grid
Hide
Previous
Next
Show more
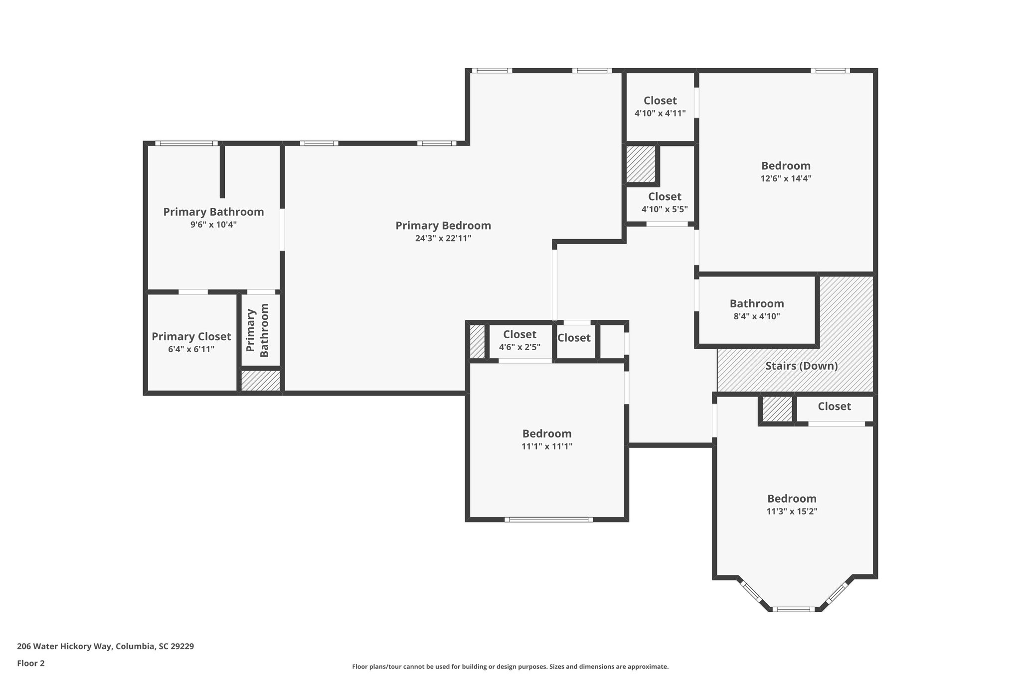
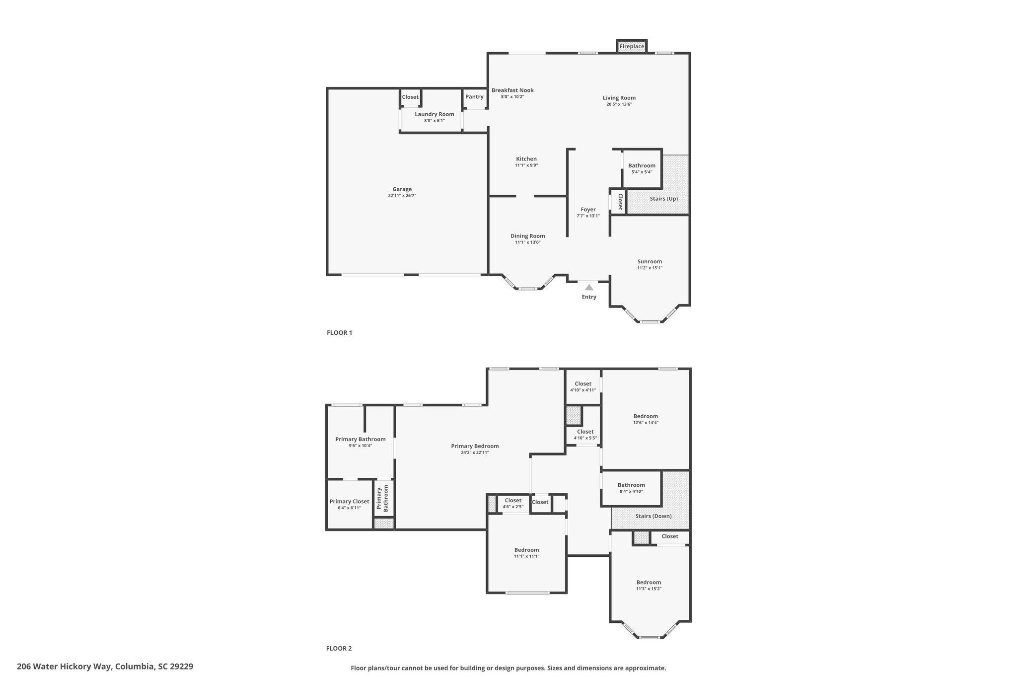
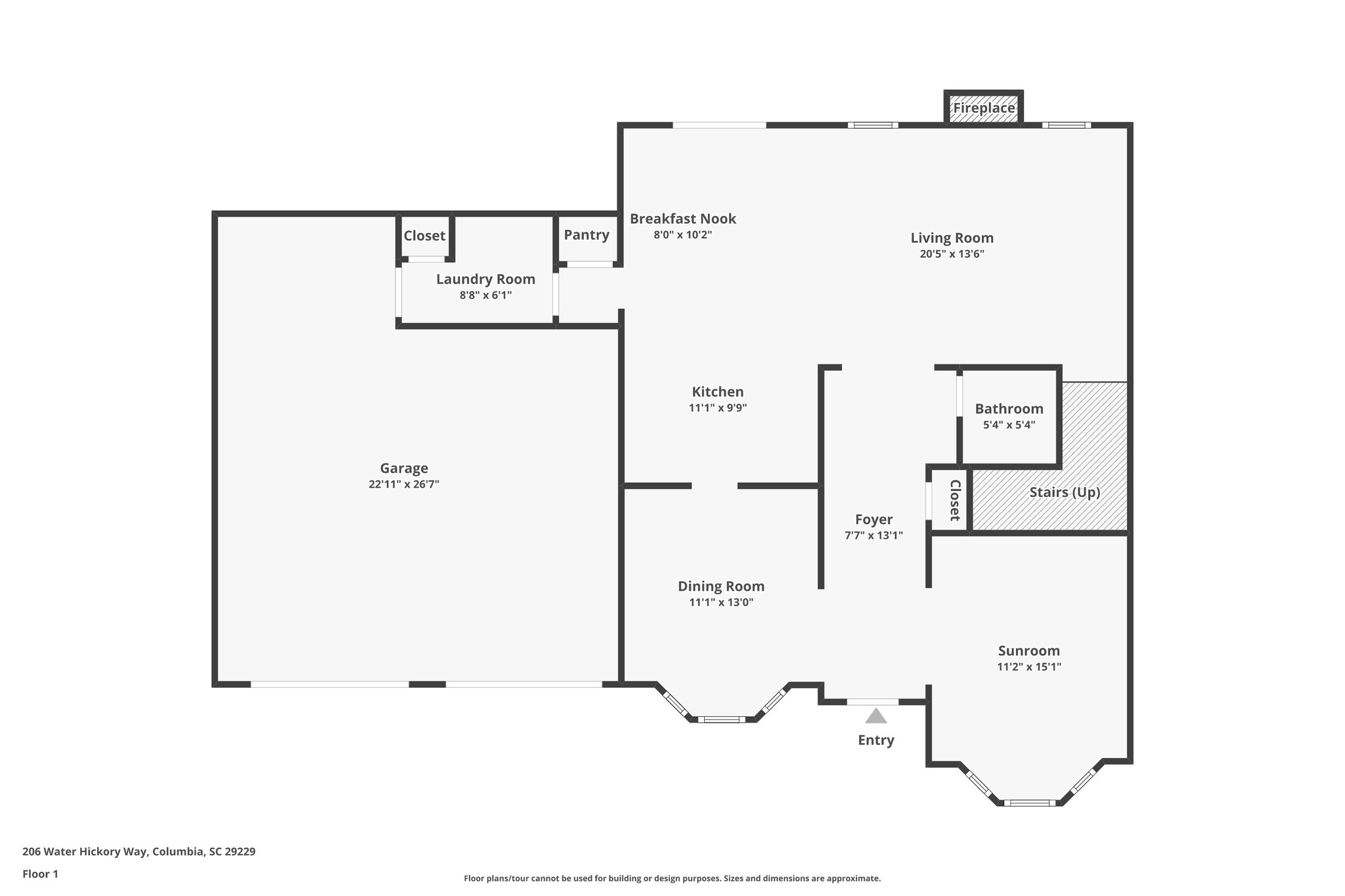
Floor Plans
Slideshow
Photo Grid
Hide
Previous
Next